Einfamilienhaus Attika Giebel Balkon 162 - Grundriss Einfamilienhaus
Tolles Familienhaus mit Attikagiebel, Balkon und überdachter Terrasse
Details zum "Einfamilienhaus Attika Giebel Balkon 162" Grundriss
| Haustyp | Einfamilienhaus |
| Bauweisen | Massivhaus |
| Baustil | Modernes Haus |
| Dachform | Satteldach |
| Dachneigung | 45° |
| Wohnfläche | 162 qm |
| Netto Grundfläche | 162 qm |
| Preisschätzung | 0 € |
| Drempelhöhe / Kniestock | 100 cm |
| Außenmaß Länge | 12.5 m |
| Außenmaß Breite | 7.8 m |
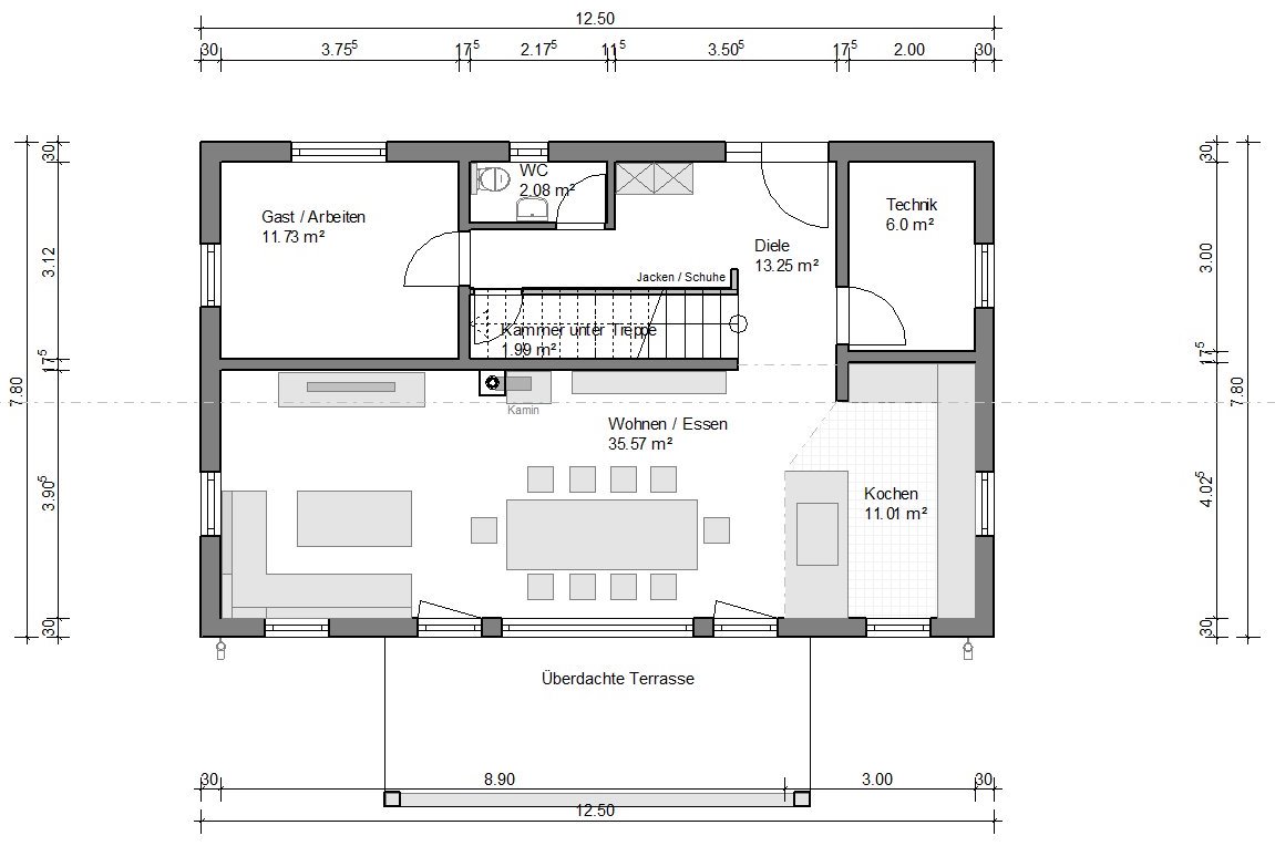
Tolles Familienhaus mit Attikagiebel, Balkon und überdachter Terrasse.
Im Erdgeschoss befindet sich ein Gäste und Arbeitszimmer, ein WC, Ein großes Ess- und Wohnzimmer, dass direkt an die offene Küche grenzt und ein Haustechnikraum.
Im Wohn- Esszimmer ist ein Kamin platziert.
Im Obergeschoss befinden sich drei Schlafzimmer, ein großes Wellnessbad mit großer Dusche und im Flur können Bücher am geschlossenen Treppenauge in Regalen aufgestellt werden.
Das Elternschlafzimmer hat eine separate Ankleide und einen direkten Zugang zum Balkon.
Das Haus verfügt außerdem über zwei große Gauben und die Giebel sind als moderne Attikagiebel ausgebildet.
Das Haus ist auch ohne Attikagiebel und einem anderen Grundrissvorschlag verfügbar:
Stadtvilla 162qm zwei Gauben
Ausstattungsmerkmale
- Offene Küche
- Gäste WC
- Wohnküche
- Speisekammer
- Kamin
- Hauswrtschaftsraum
- Hausanschlußraum
- Balkon
- Gäste- / Arbeitszimmer
- Überdachte Terrasse
- Ankleidezimmer
Grundrisse zum Download
Laden Sie sich den Grundriss von diesem Einfamilienhaus herunter, um ihn auszudrucken und Ihre persönliche Planung des Hauses "Einfamilienhaus Attika Giebel Balkon 162" zu erstellen.Weiteres zu diesem Grundriss
Auszug aus den enthaltenen Leistungen der Baubeschreibung:
- Planung, Architekt, Statik, Energieausweis inklusive
- Standard Erdarbeiten für Bodenplatte
- Bodenplatte INKLUSIVE- Auf Wunsch auch als Thermobodenplatte
- Wandaufbau: Ökologische und diffusionsoffene Außenwand mit Naturbaustoffen oder als Massivhaus in Poroton-Ziegelbauweise
- Verklinkerte oder verputzte Fassade (auf Wunsch auch Holzfassaden)
- Sichtbare Holzbalkendecke oder Betondecke
- Fliesenarbeiten und Fliesen für große Teile des Hauses (nicht nur Nasszellen)
- Erdwärmepumpe, Pelletheizung oder Luft-Wasser-Wärmepumpe
- Fußbodenheizung im Erd- und Dachgeschoss
- Freie Grundrissplanung
- KfW 55 unproblematisch möglich
- Dreischeiben-Verglasung (mit oder ohne Sprossen)
- Hochwertige Ausstattungsdetails für Sanitär, Innen- und Aussentüren
- verschärfte EnEV 2016 wird bereits 2015 eingehalten
Ähnliche Grundrisse
Bauhaus
"Dia 177 Balkon"
Details zum Bauhaus Dia 177 Balkon
Stadtvilla
"Stadtvilla 162qm 2 Gauben"
Details zum Stadtvilla Stadtvilla 162qm 2 Gauben
Bauhaus
"Fachwerkhaus im Bauhaus-Stil"
Details zum Bauhaus Fachwerkhaus im Bauhaus-Stil
