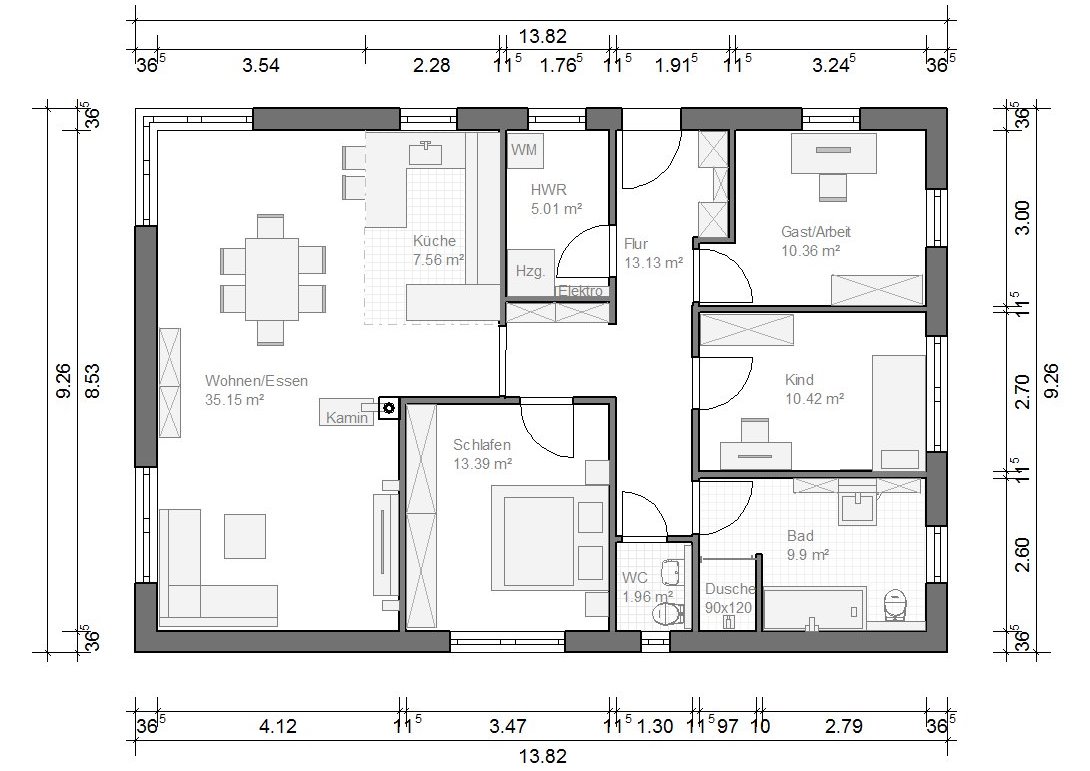
Bungalow München 107qm 4 Zimmer - Grundriss Bungalow
Bungalow mit 4 Zimmern und 107qm Wohnfläche
Details zum "Bungalow München 107qm 4 Zimmer" Grundriss
| Haustyp | Bungalow |
| Bauweisen | Massivhaus |
| Baustil | Klassisches-Haus |
| Dachform | Walmdach |
| Dachneigung | 24° |
| Wohnfläche | 107 qm |
| Netto Grundfläche | 107 qm |
| Preisschätzung | 0 € |
| Drempelhöhe / Kniestock | 0 cm |
| Außenmaß Länge | 13.82 m |
| Außenmaß Breite | 9.26 m |
Walmdach Bungalow mit 107qm Wonhfläche und 4 Zimmern. Dieses Bungalow hat einen offenen Wohn- und Essbereich mit offener Küche.
Im Wohnzimmer ist ein Kamin mittig positioniert, der als Raumtrenner zum Esszimmer funktionieren kann. Neben dem Gäste WC lädt das große Badezimmer zum relaxen ein.
Ein besonderes Highlight sind die großen Fenster über Eck im Esszimmer.
Weitere Bungalowgrundrisse finden Sie hier: Bungalow Grundrisse
Ausstattungsmerkmale
- Offene Küche
- Gäste WC
- Kamin
- Hauswrtschaftsraum
- Hausanschlußraum
- Gäste- / Arbeitszimmer
Weiteres zu diesem Grundriss
Auszug aus den enthaltenen Leistungen der Baubeschreibung:
- Planung, Architekt, Statik, Energieausweis inklusive
- Standard Erdarbeiten für Bodenplatte
- Bodenplatte INKLUSIVE- Auf Wunsch auch als Thermobodenplatte
- Wandaufbau: Ökologische und diffusionsoffene Außenwand mit Naturbaustoffen oder als Massivhaus in Poroton-Ziegelbauweise
- Verklinkerte oder verputzte Fassade (auf Wunsch auch Holzfassaden)
- Sichtbare Holzbalkendecke oder Betondecke
- Fliesenarbeiten und Fliesen für große Teile des Hauses (nicht nur Nasszellen)
- Erdwärmepumpe, Pelletheizung oder Luft-Wasser-Wärmepumpe
- Fußbodenheizung im Erd- und Dachgeschoss
- Freie Grundrissplanung
- KfW 55 unproblematisch möglich
- Dreischeiben-Verglasung (mit oder ohne Sprossen)
- Hochwertige Ausstattungsdetails für Sanitär, Innen- und Aussentüren
- verschärfte EnEV 2016 wird bereits 2015 eingehalten
Ähnliche Grundrisse
Bungalow
"Bungalow 98"
Details zum Bungalow Bungalow 98
Winkelbungalow
"Potsdam"
Details zum Winkelbungalow Potsdam
Winkelbungalow
"Livingstar 2"
Details zum Winkelbungalow Livingstar 2
Bungalow
"Livingstar 1"
Details zum Bungalow Livingstar 1
Winkelbungalow
"Fachwerkbungalow Berlin"
Details zum Winkelbungalow Fachwerkbungalow Berlin
Winkelbungalow
"Schönwalde"
Details zum Winkelbungalow Schönwalde
Bungalow
"Bungalow 115 Falkenhagen"
Details zum Bungalow Bungalow 115 Falkenhagen
